joyjoy studio
Home
Projects
Services
Contact
INSTAGRAM
Home
Projects
Services
Contact
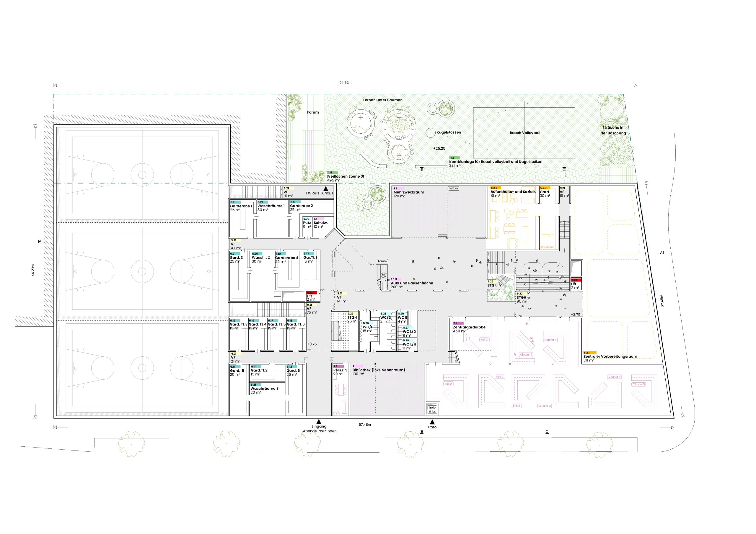
AHS Otto-Preminger-Strasse
Type:
open competition
Category:
educational
Year:
2022
This site uses cookies. By continuing to browse the site, you are agreeing to our use of cookies.
That\'s OK
Learn More