APARTMENT KOSICE
Type: Apartment reconstruction
Category: Interior design
Year: 2022
Photography: joyjoy studio
Client: Private


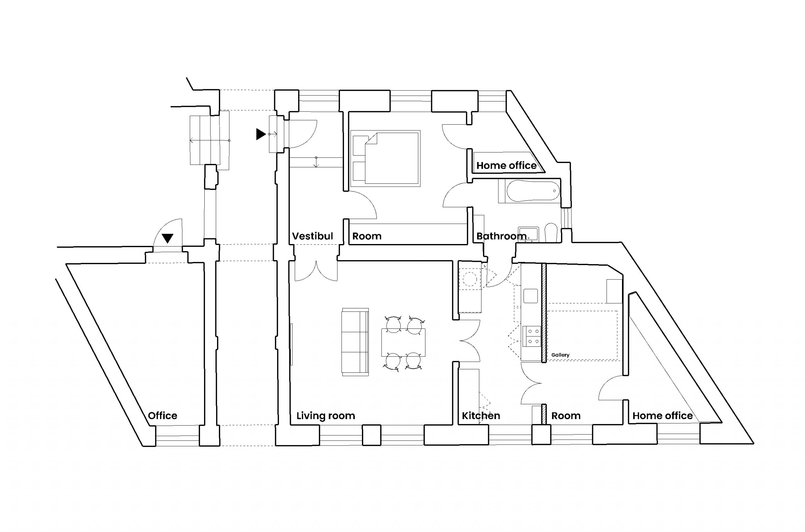
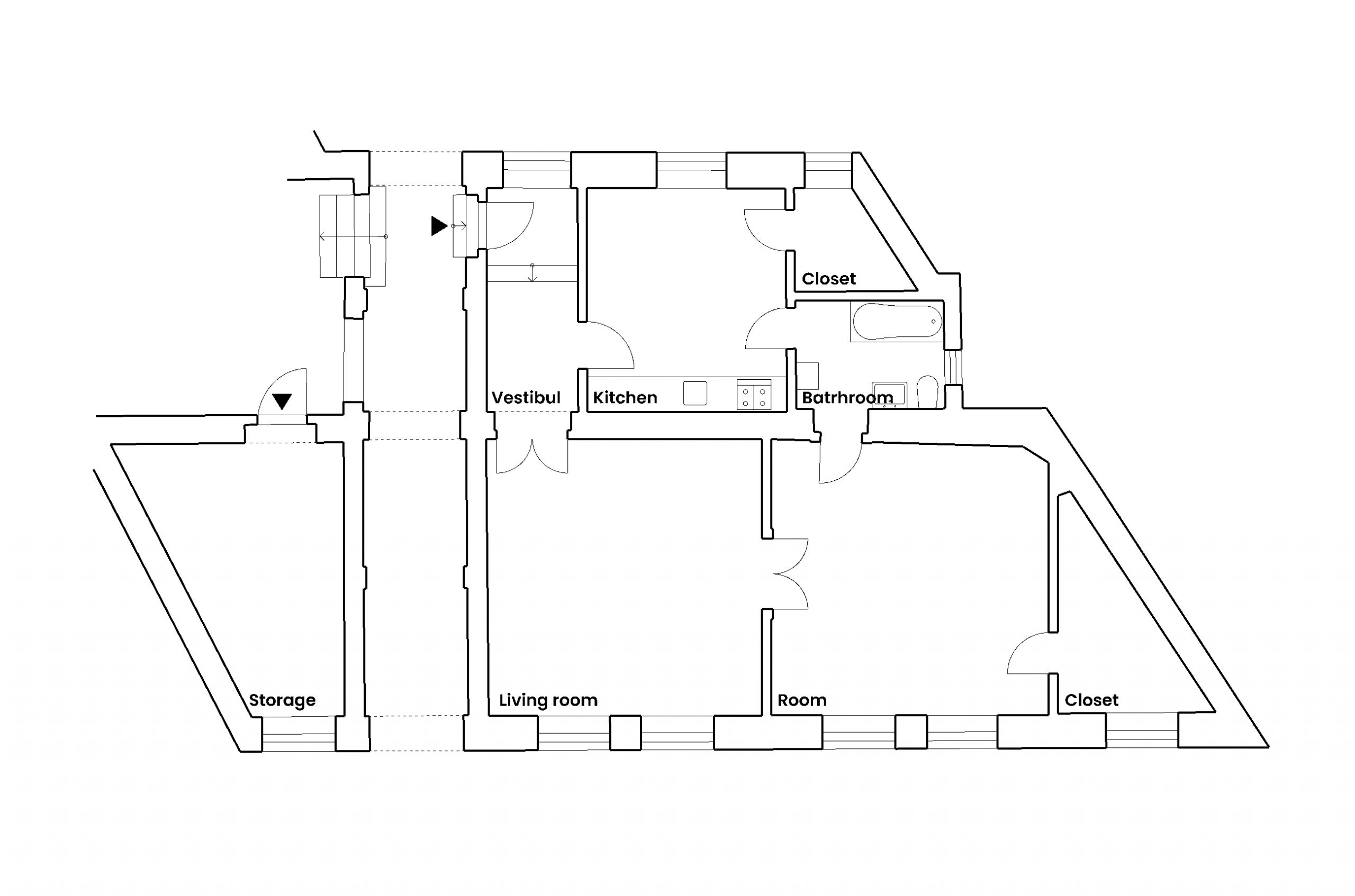
With the addition of one division wall a bigger flexibility is allowed. Apartment is now suitable for family with kids, students or even as a flat/office space.

The kitchen counter is a combination of practicality and warmth.




Only broken tiles have been replaced. The existing tiles have been painted over in the same green shade as the walls.







