TRIO BERLIN

Type: Restaurant
Category: interior design

Year: 2022

Photography: Robert Rieger

joyjoy-Trio-07
joyjoy-Trio-03

Trio represents a modern interpretation of a traditional Wirtshaus, nestled within Berlin’s vibrant district of Mitte. Anchoring the heart of the establishment is an elongated, asymmetrical bar with an ashwood countertop and second-hand wooden bar stools – an ideal setting for serendipitous interactions. Adjoining the expansive windows, you’ll find built-in upholstered benches paired with small cast-iron tables boasting red linoleum tops. Behind the counter, a raised platform offers snug seating and a piano corner. Furthermore, large wall opening affords glimpses into the bustling kitchen.

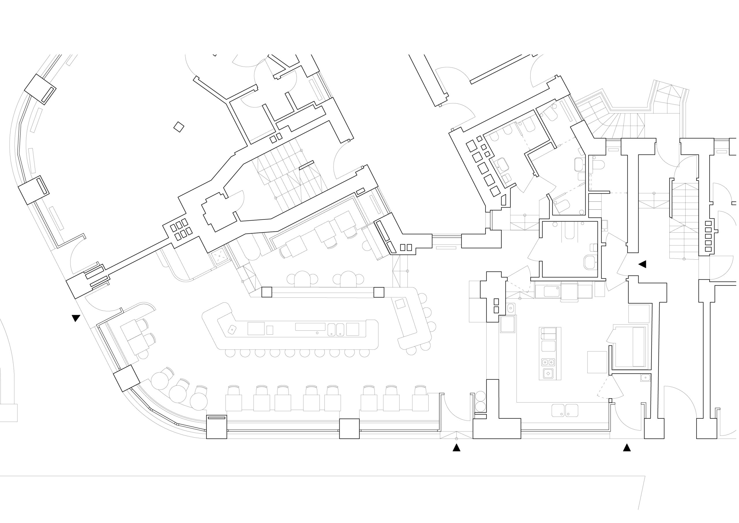
joyjoy-Trio-floorplan
joyjoy-Trio-05
joyjoy-Trio-06

While at its core, the eatery is designed for optimal functionality and offers a variety of seating options, it exudes an immediate sense of comfort, reminiscent of an old guesthouse.

joyjoy-Trio-02

During the daytime, the space is bathed in an abundance of natural light streaming in through expansive windows. As evening falls, the interior emits a cozy and inviting glow that spills warmly onto the street.

joyjoy-Trio-04
joyjoy-Trio-08
joyjoy-Trio-section
joyjoy-Trio-01
joyjoy-Trio-09