Urban Habitat Za Papirnou
Type: open competition
Typology: Social housing with ground floor commercial use
Location: Prague, Czech Republic
Year: 2022

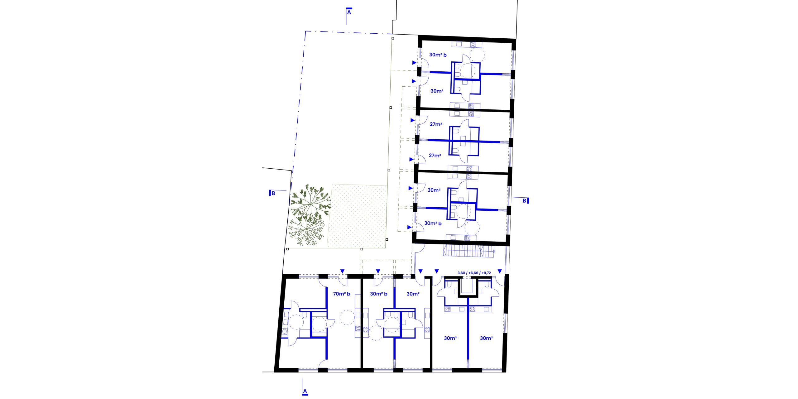
Urban Habitat with clear and flexible layouts of apartments that are lit from both sides. The porch type turns into a communicative, integrating element thanks to its dual use as a balcony and access area. This creates the potential for social communication and spatial quality. The ground floor is designed as an active floor with generous spaces for commercial and social use.

The deliberately simple structure of the building offers the possibility of different housing models even for the smallest apartments. If the studios are combined into two bedroom flats, they can offer a „PLUS“ room.
(used for example as a work area, children‘s room, music room, etc.)



